Rigtig flot rækkehus beliggende i Vester Nebel med tilhørende carport og redskabsrum.
Store ovenlys vinduer med delvis fjernstyring, parket gulve og hårde hvidevarer i stål.
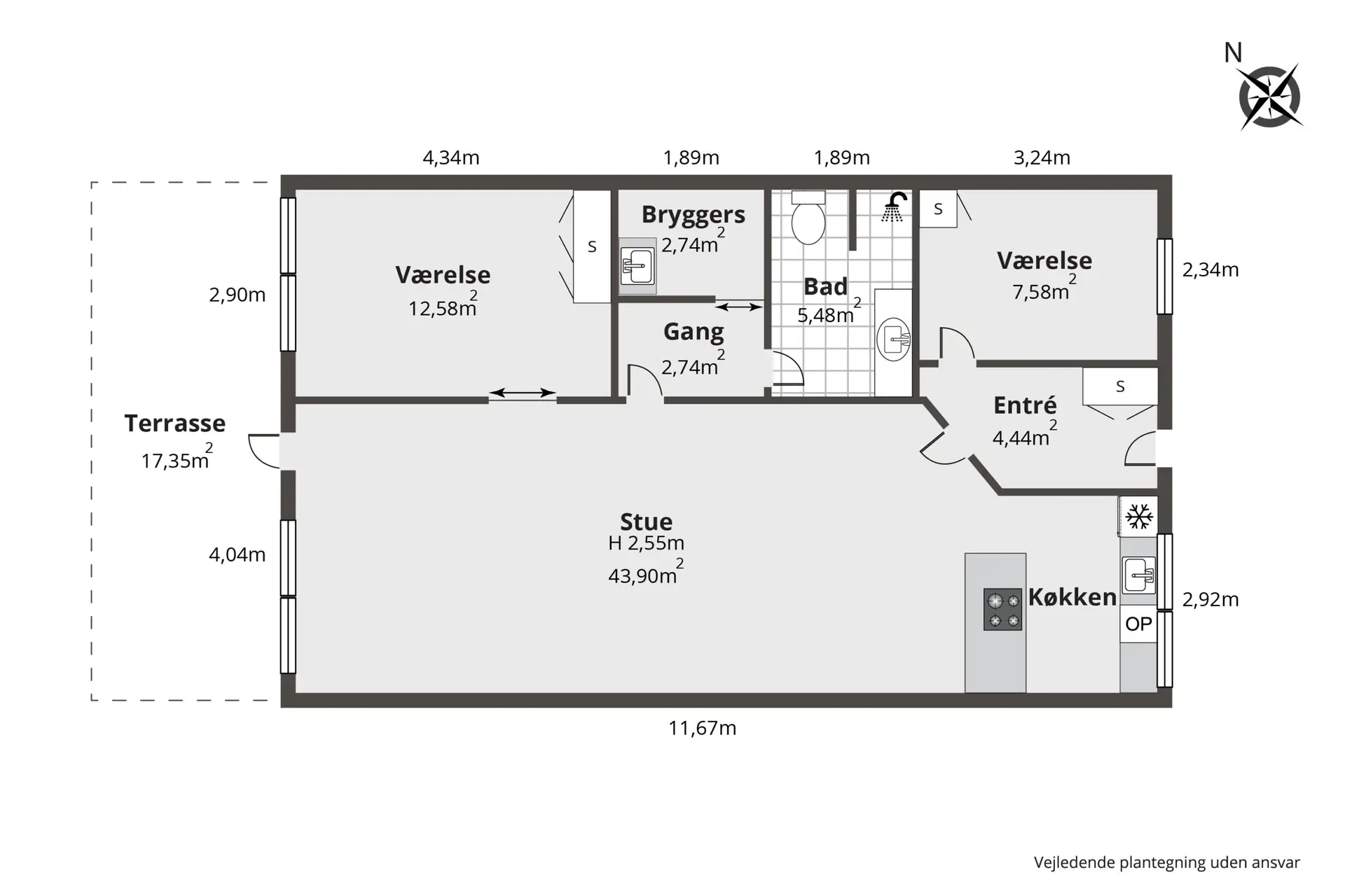
Huset har en virkelig god planløsning helt uden spildplads og der er gulvvarme i alle rum.
Tæt på indkøb og natur og kun 8 minutters kørsel fra Kolding Storcenter.
Husdyr skal godkendes og skal der holdes hund eller kat i lejemålet medfører det, at der opkræves yderligere 1 md. forudbetalt husleje.










